TPL_PROTOSTAR_TOGGLE_MENU
Voorpagina
Imkerforum
Imkerpedia
Groentjes
Nieuws
Downloads
Bijenkasten
Schotman_werkteekeningen uit boek Schotman
(10)
bijenkast-kruiwagen.pdf
Download
Details
Dadant 6 raams bodem.jpg
Download
Details
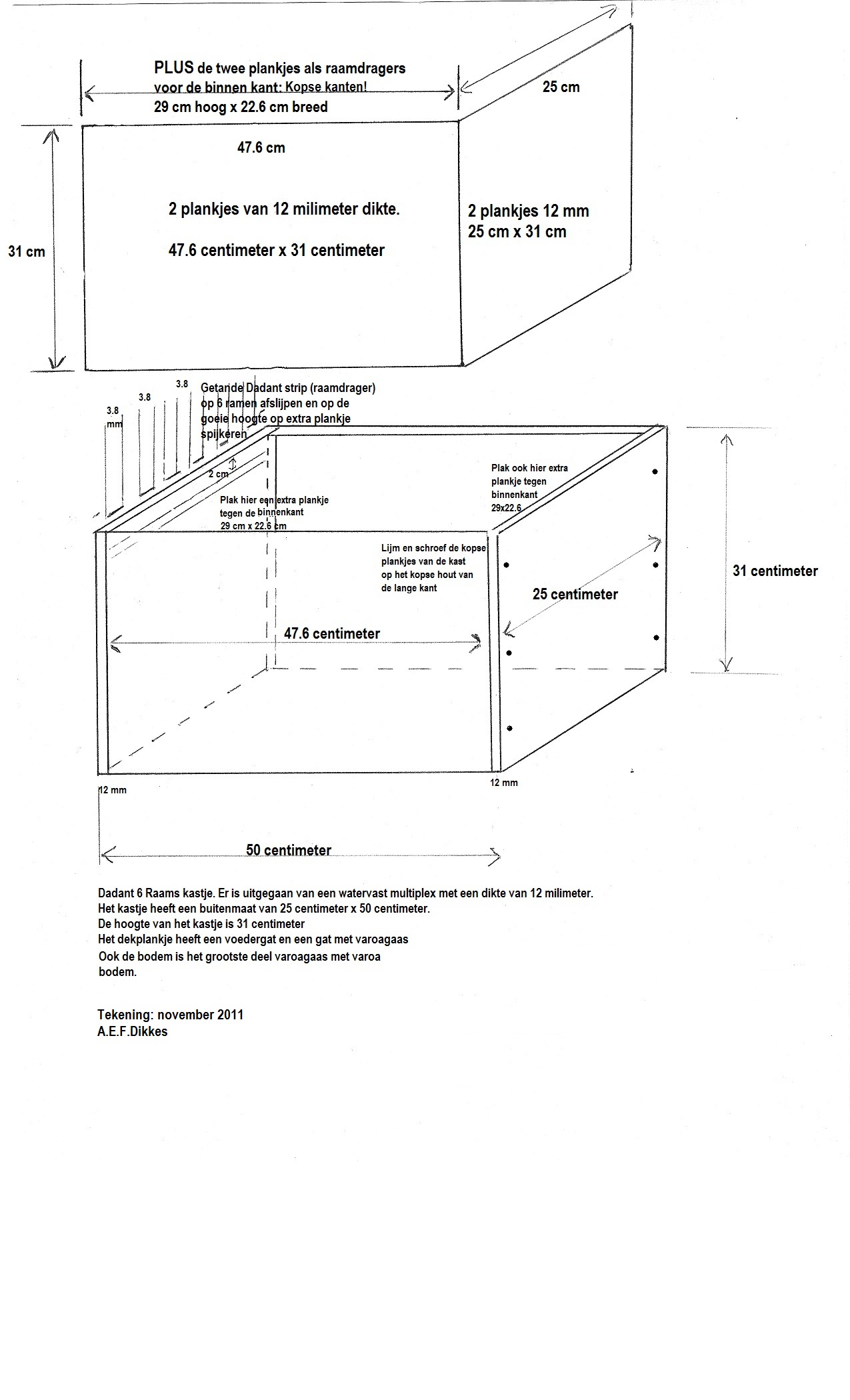
Dadant 6 raams kastje.jpg
Download
Details
De-WBC-Kast.pdf
Download
Details
drieramer.pdf
Download
Details
segeberger-seperator-bodemenbakken.skp
Download
Details
spaarkast a4.pdf
Download
Details
spaarkast.zip
Download
Details
stuifmeelval1.zip
Download
Details
stuifmeelval2.gif
Download
Details
tbh-bijenkast.pdf
Download
Details
Bouwtekening%20starter.pdf
Download
Details
einraumbeute.pdf
Download
Details
Display Num
5
10
15
20
50
All
Powered by
Phoca Download
U bevindt zich hier:
Home
Downloads
Bijenkasten